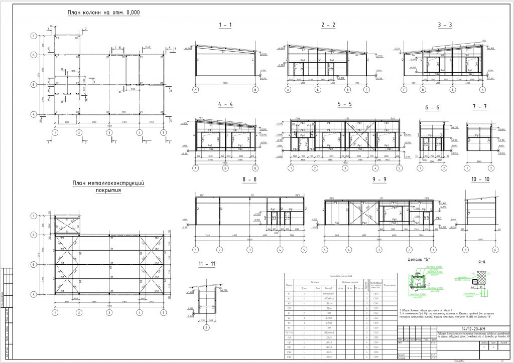
Завершены работы по разработке раздела КМ для павильона вспомогательного назначения размером 10,0х18,0х3,5 м. Местонахождения объекта населенный пункт Щатково Могилевской области.

Завершены работы по разработке раздела КМ для павильона вспомогательного назначения размером 10,0х18,0х3,5 м. Местонахождения объекта населенный пункт Щатково Могилевской области.
